
ACO Oleopator G sa eksternim Bypass-om napravljen je od GRP (plastika armirana staklenim vlaknima) koja je izvanredan materijal za ugradnju u zemlju. Njegova izuzetna snaga u kombinaciji sa malom težinom, čini ga idealnim materijalom za građevinsku industriju.
Karakteriše ga nizak nivo degradacije mehaničkih i hemijskih parametara tokom vremena a istovremeno sa visokom otpornošću na spoljne i unutrašnje uticaje kao što su vreme, temperatura, UV zračenje ili hemijski uticaji. Neporoznost materijala eliminiše probleme sa korozijom i obezbeđuje maksimalnu sigurnost vodonepropustnosti.
Usled visoke hemijske otpornosti materijala nema potrebe za dodatnom spoljnom zaštitom. Njegova izdržljivost protiv takozvane snage puzanja je zapanjujuća u odnosu na druge materijale. Najveća prednost dolazi od fleksibilnosti u obliku,veličini, otpornosti završne površine i prilagodljivosti potrebama klijenta.
ACO Oleopator G eksterni Bypass

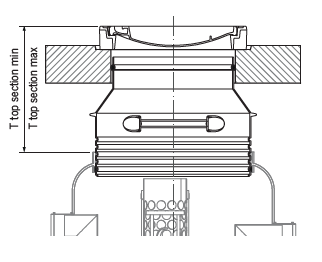
Primer ugradnje na slici prikazuje ugradnju separatora ACO Oleopator G sa poklopcem za klasu nosivosti D400.

Potvrđena efikasnost prečišćavanja prema EN 858-1 za klasu I (koalescentne separatore) - mineralnih ulja u prečišćenoj vodi manje od 5mg/l.
Dokazano laboratorijskim ispitivanjem pri akreditovanom LGA institutu (Landesgewerbeanstalt Bayern) iz Nürnberga.
Oprema separatora:
- izvadivi koalescentni element ("filter")
- sifonirani (potopljeni) uliv sa deflektorom
- potopljena izlivna cev
- sigurnosni plovak za sprečavanje nekontrolisanog isticanja izdvojenih naftnih derivata
- namenjen za ugradnju u zemlju
- otporan na delovanje uzgonskih sila podzemnih voda (visina podzemne vode do uliva u separator)
- unutrašnji elementi separatora izrađeni od PEHD-a ili nerđajućeg čelika
- telo separatora izrađeno od plastike armirane staklenim vlaknima
- BEGU poklopac klase nosivosti D400 prema SRPS EN 124, svetlog otvora Ø600/800mm sa natpisom »SEPARATOR«
Područje primene:
- spoljna parkirališta
- saobraćajnice (putevi i autoputevi)
- benzinske stanice
- ručne autoperionice za lična ili vozila preduzeća
- autoservisi
- skladišta i proizvodni pogoni
- autootpadi i sl.

Raspoloživi modeli ACO Oleopatora G sa eksternim Bypass-om
Tabela 1
| Regulator protoka Protok NS/Q max | Artikal broj | Masa(kg) | Prečnik tanka DN | Ulivna cev | ByPass izliv | Izliv prema separatoru |
|---|---|---|---|---|---|---|
| 40/400 | 12750.01 | 280 | DN 1500 | DN 500 | DN 500 | DN 300 |
| 50/500 | 12751.01 | 280 | DN 1500 | GRP pipe 600 | DN 500 | DN 300 |
| 65/650 | 12752.01 | 570 | DN 2100 | GRP pipe 800 | GRP pipe 600 | DN 300 |
| 80/800 | 12753.01 | 550 | DN 2100 | GRP pipe 800 | GRP pipe 600 | DN 400 |
| 100/1000 | 12754.01 | 560 | DN 2100 | GRP pipe 800 | GRP pipe 800 | DN 400 |
| 200/1000 (2XNS100) | 12755.01 | 600 | DN 2100 | GRP pipe 800 | GRP pipe 800 | DN 400 |
| 130/1300 (2xNS65) | 12756.01 | 600 | DN 2100 | GRP pipe 1000 | GRP pipe 1000 | DN 300 |
| 160/1600 (2xNS80) | 12757.01 | 630 | DN 2100 | GRP pipe 1000 | GRP pipe 1000 | DN 400 |
| 200/2000 (2xNS100) | 12758.01 | 700 | DN 2100 | GRP pipe 1200 | GRP pipe 1000 | DN 400 |
Tabela 2
| Sabirni šaht | Artikal broj | Masa(kg) | Prečnik tanka | Izlivna cev | ByPass uliv | Uliv od separatora |
|---|---|---|---|---|---|---|
| 40/400 | 12770.01 | 140 | DN 1000 | DN 500 | DN 500 | DN 300 |
| 50/500 | 12771.01 | 140 | DN 1000 | GRP pipe 600 | DN 500 | DN 300 |
| 65/650 | 12772.01 | 180 | DN 1200 | GRP pipe 800 | GRP pipe 600 | DN 300 |
| 80/800 | 12773.01 | 180 | DN 1200 | GRP pipe 800 | GRP pipe 600 | DN 400 |
| 100/1000 | 12774.01 | 320 | DN 1500 | GRP pipe 800 | GRP pipe 800 | DN 400 |
| 200/1000 (2XNS100) | 12775.01 | 320 | DN 1500 | GRP pipe 800 | GRP pipe 800 | DN 400 |
| 130/1300 (2xNS65) | 12776.01 | 330 | DN 1500 | GRP pipe 1000 | GRP pipe 1000 | DN 300 |
| 160/1600 (2xNS80) | 12777.01 | 330 | DN 1500 | GRP pipe 1000 | GRP pipe 1000 | DN 400 |
| 200/2000 (2xNS100) | 12778.01 | 450 | DN 1800 | GRP pipe 1200 | GRP pipe 1000 | DN 400 |
Primeri
Gornji deo 1 - klasa opterećenja A15/DN600
| T (min-max)* | Poklopac (mm) | Težina (kg) | Artikal broj |
|---|---|---|---|
| 520-640 | Ø 600 | 97 | 3301.34.11 |
| 520-1090 | Ø 600 | 103 | 3301.34.12 |
| 520-1690 | Ø 600 | 113 | 3301.34.13 |
Gornji deo 2 - klasa opterećenja B125/DN600
| T (min-max)* | Poklopac (mm) | Težina (kg) | Artikal broj |
|---|---|---|---|
| 550-670 | Ø 600 | 115 | 3301.35.11 |
| 550-1120 | Ø 600 | 123 | 3301.35.12 |
| 550-1720 | Ø 600 | 134 | 3301.35.13 |
Gornji deo 3 - klasa opterećenja D400/DN600
| T (min-max)* | Poklopac (mm) | Težina (kg) | Artikal broj |
|---|---|---|---|
| 550-655 | Ø 600 | 846 | 3301.36.08 |
| 550-1130 | Ø 600 | 854 | 3301.36.09 |
| 550-1730 | Ø 600 | 866 | 3301.36.10 |
| 550-655 (bez rasteretne ploče) | Ø 600 | 186 | 3301.37.08 |
| 550-1130 (bez rasteretne ploče) | Ø 600 | 194 | 3301.37.09 |
| 550-1730 (bez rasteretne ploče) | Ø 600 | 198 | 3301.37.10 |
Gornji deo 4 - klasa opterećenja D400/DN800
| T (min)* | Poklopac (mm) | Težina (kg) | Artikal broj |
|---|---|---|---|
| 505-715 | Ø 800 | 1161 | 418951 |
| 500-1645 | Ø 800 | 1194 | 418906 |
| 525-735 (bez rasteretne ploče) | Ø 800 | 261 | 418950 |
| 500-1645 (bez rasteretne ploče) | Ø 800 | 272 | 418905 |
* T ukupno = T tank + T (min-max)
| ACO Oleopator-ByPass G NS40_400_4000 EXT | dwg | |
| ACO Oleopator-ByPass G NS50_500_5000 EXT | dwg | |
| ACO Oleopator-ByPass G NS65_650_6500 EXT | dwg | |
| ACO Oleopator-ByPass G NS80_800_8000 EXT | dwg | |
| ACO Oleopator-ByPass G NS100_1000_10000 EXT | dwg | |
| ACO Oleopator-ByPass G NS130_1300_13000 EXT | dwg | |
| ACO Oleopator-ByPass G NS160_1600_16000 EXT | dwg | |
| ACO Oleopator-ByPass G NS200_1000_10000 EXT | dwg | |
| ACO Oleopator-ByPass G NS200_2000_20000 EXT | dwg | |
| ACO Oleopator-ByPass G EXT-Nadvisenja fi600 | dwg | |
| ACO Oleopator-ByPass G EXT-Nadvisenja fi800 | dwg | |
| ACO Oleopator-ByPass G EXT-Uputstvo za ugradnju 1 | ||
| ACO Oleopator-ByPass G EXT-Uputstvo za ugradnju 2 |
| Tenderski opis Oleopator Bypass G FST NS40_400 ST4000 ext | |
| Tenderski opis Oleopator Bypass G FST NS50_500 ST5000 ext | |
| Tenderski opis Oleopator Bypass G FST NS65_650 ST6500 ext | |
| Tenderski opis Oleopator Bypass G FST NS80_800 ST8000 ext | |
| Tenderski opis Oleopator Bypass G FST NS100_1000 ST10000 ext | |
| Tenderski opis Oleopator Bypass G FST NS130_1300 ST13000 ext | |
| Tenderski opis Oleopator Bypass G FST NS160_1600 ST16000 ext | |
| Tenderski opis Oleopator Bypass G FST NS200_1000 ST20000 ext | |
| Tenderski opis Oleopator Bypass G FST NS200_2000 ST20000 ext |
| DoP_ST_T1_1602_EN_Oleopator G |

Primer ugradnje na slici prikazuje ugradnju separatora ACO Oleopator G sa poklopcem za klasu nosivosti D400.

Potvrđena efikasnost prečišćavanja prema EN 858-1 za klasu I (koalescentne separatore) - mineralnih ulja u prečišćenoj vodi manje od 5mg/l.
Dokazano laboratorijskim ispitivanjem pri akreditovanom LGA institutu (Landesgewerbeanstalt Bayern) iz Nürnberga.
Oprema separatora:
- izvadivi koalescentni element ("filter")
- sifonirani (potopljeni) uliv sa deflektorom
- potopljena izlivna cev
- sigurnosni plovak za sprečavanje nekontrolisanog isticanja izdvojenih naftnih derivata
- namenjen za ugradnju u zemlju
- otporan na delovanje uzgonskih sila podzemnih voda (visina podzemne vode do uliva u separator)
- unutrašnji elementi separatora izrađeni od PEHD-a ili nerđajućeg čelika
- telo separatora izrađeno od plastike armirane staklenim vlaknima
- BEGU poklopac klase nosivosti D400 prema SRPS EN 124, svetlog otvora Ø600/800mm sa natpisom »SEPARATOR«
Područje primene:
- spoljna parkirališta
- saobraćajnice (putevi i autoputevi)
- benzinske stanice
- ručne autoperionice za lična ili vozila preduzeća
- autoservisi
- skladišta i proizvodni pogoni
- autootpadi i sl.

Raspoloživi modeli ACO Oleopatora G sa eksternim Bypass-om
Tabela 1
| Regulator protoka Protok NS/Q max | Artikal broj | Masa(kg) | Prečnik tanka DN | Ulivna cev | ByPass izliv | Izliv prema separatoru |
|---|---|---|---|---|---|---|
| 40/400 | 12750.01 | 280 | DN 1500 | DN 500 | DN 500 | DN 300 |
| 50/500 | 12751.01 | 280 | DN 1500 | GRP pipe 600 | DN 500 | DN 300 |
| 65/650 | 12752.01 | 570 | DN 2100 | GRP pipe 800 | GRP pipe 600 | DN 300 |
| 80/800 | 12753.01 | 550 | DN 2100 | GRP pipe 800 | GRP pipe 600 | DN 400 |
| 100/1000 | 12754.01 | 560 | DN 2100 | GRP pipe 800 | GRP pipe 800 | DN 400 |
| 200/1000 (2XNS100) | 12755.01 | 600 | DN 2100 | GRP pipe 800 | GRP pipe 800 | DN 400 |
| 130/1300 (2xNS65) | 12756.01 | 600 | DN 2100 | GRP pipe 1000 | GRP pipe 1000 | DN 300 |
| 160/1600 (2xNS80) | 12757.01 | 630 | DN 2100 | GRP pipe 1000 | GRP pipe 1000 | DN 400 |
| 200/2000 (2xNS100) | 12758.01 | 700 | DN 2100 | GRP pipe 1200 | GRP pipe 1000 | DN 400 |
Tabela 2
| Sabirni šaht | Artikal broj | Masa(kg) | Prečnik tanka | Izlivna cev | ByPass uliv | Uliv od separatora |
|---|---|---|---|---|---|---|
| 40/400 | 12770.01 | 140 | DN 1000 | DN 500 | DN 500 | DN 300 |
| 50/500 | 12771.01 | 140 | DN 1000 | GRP pipe 600 | DN 500 | DN 300 |
| 65/650 | 12772.01 | 180 | DN 1200 | GRP pipe 800 | GRP pipe 600 | DN 300 |
| 80/800 | 12773.01 | 180 | DN 1200 | GRP pipe 800 | GRP pipe 600 | DN 400 |
| 100/1000 | 12774.01 | 320 | DN 1500 | GRP pipe 800 | GRP pipe 800 | DN 400 |
| 200/1000 (2XNS100) | 12775.01 | 320 | DN 1500 | GRP pipe 800 | GRP pipe 800 | DN 400 |
| 130/1300 (2xNS65) | 12776.01 | 330 | DN 1500 | GRP pipe 1000 | GRP pipe 1000 | DN 300 |
| 160/1600 (2xNS80) | 12777.01 | 330 | DN 1500 | GRP pipe 1000 | GRP pipe 1000 | DN 400 |
| 200/2000 (2xNS100) | 12778.01 | 450 | DN 1800 | GRP pipe 1200 | GRP pipe 1000 | DN 400 |
Primeri
Gornji deo 1 - klasa opterećenja A15/DN600
| T (min-max)* | Poklopac (mm) | Težina (kg) | Artikal broj |
|---|---|---|---|
| 520-640 | Ø 600 | 97 | 3301.34.11 |
| 520-1090 | Ø 600 | 103 | 3301.34.12 |
| 520-1690 | Ø 600 | 113 | 3301.34.13 |
Gornji deo 2 - klasa opterećenja B125/DN600
| T (min-max)* | Poklopac (mm) | Težina (kg) | Artikal broj |
|---|---|---|---|
| 550-670 | Ø 600 | 115 | 3301.35.11 |
| 550-1120 | Ø 600 | 123 | 3301.35.12 |
| 550-1720 | Ø 600 | 134 | 3301.35.13 |
Gornji deo 3 - klasa opterećenja D400/DN600
| T (min-max)* | Poklopac (mm) | Težina (kg) | Artikal broj |
|---|---|---|---|
| 550-655 | Ø 600 | 846 | 3301.36.08 |
| 550-1130 | Ø 600 | 854 | 3301.36.09 |
| 550-1730 | Ø 600 | 866 | 3301.36.10 |
| 550-655 (bez rasteretne ploče) | Ø 600 | 186 | 3301.37.08 |
| 550-1130 (bez rasteretne ploče) | Ø 600 | 194 | 3301.37.09 |
| 550-1730 (bez rasteretne ploče) | Ø 600 | 198 | 3301.37.10 |
Gornji deo 4 - klasa opterećenja D400/DN800
| T (min)* | Poklopac (mm) | Težina (kg) | Artikal broj |
|---|---|---|---|
| 505-715 | Ø 800 | 1161 | 418951 |
| 500-1645 | Ø 800 | 1194 | 418906 |
| 525-735 (bez rasteretne ploče) | Ø 800 | 261 | 418950 |
| 500-1645 (bez rasteretne ploče) | Ø 800 | 272 | 418905 |
* T ukupno = T tank + T (min-max)
| ACO Oleopator-ByPass G NS40_400_4000 EXT | dwg | |
| ACO Oleopator-ByPass G NS50_500_5000 EXT | dwg | |
| ACO Oleopator-ByPass G NS65_650_6500 EXT | dwg | |
| ACO Oleopator-ByPass G NS80_800_8000 EXT | dwg | |
| ACO Oleopator-ByPass G NS100_1000_10000 EXT | dwg | |
| ACO Oleopator-ByPass G NS130_1300_13000 EXT | dwg | |
| ACO Oleopator-ByPass G NS160_1600_16000 EXT | dwg | |
| ACO Oleopator-ByPass G NS200_1000_10000 EXT | dwg | |
| ACO Oleopator-ByPass G NS200_2000_20000 EXT | dwg | |
| ACO Oleopator-ByPass G EXT-Nadvisenja fi600 | dwg | |
| ACO Oleopator-ByPass G EXT-Nadvisenja fi800 | dwg | |
| ACO Oleopator-ByPass G EXT-Uputstvo za ugradnju 1 | ||
| ACO Oleopator-ByPass G EXT-Uputstvo za ugradnju 2 |
| Tenderski opis Oleopator Bypass G FST NS40_400 ST4000 ext | |
| Tenderski opis Oleopator Bypass G FST NS50_500 ST5000 ext | |
| Tenderski opis Oleopator Bypass G FST NS65_650 ST6500 ext | |
| Tenderski opis Oleopator Bypass G FST NS80_800 ST8000 ext | |
| Tenderski opis Oleopator Bypass G FST NS100_1000 ST10000 ext | |
| Tenderski opis Oleopator Bypass G FST NS130_1300 ST13000 ext | |
| Tenderski opis Oleopator Bypass G FST NS160_1600 ST16000 ext | |
| Tenderski opis Oleopator Bypass G FST NS200_1000 ST20000 ext | |
| Tenderski opis Oleopator Bypass G FST NS200_2000 ST20000 ext |
| DoP_ST_T1_1602_EN_Oleopator G |











